adu-header

La Jolla ADU

Design & Remodel

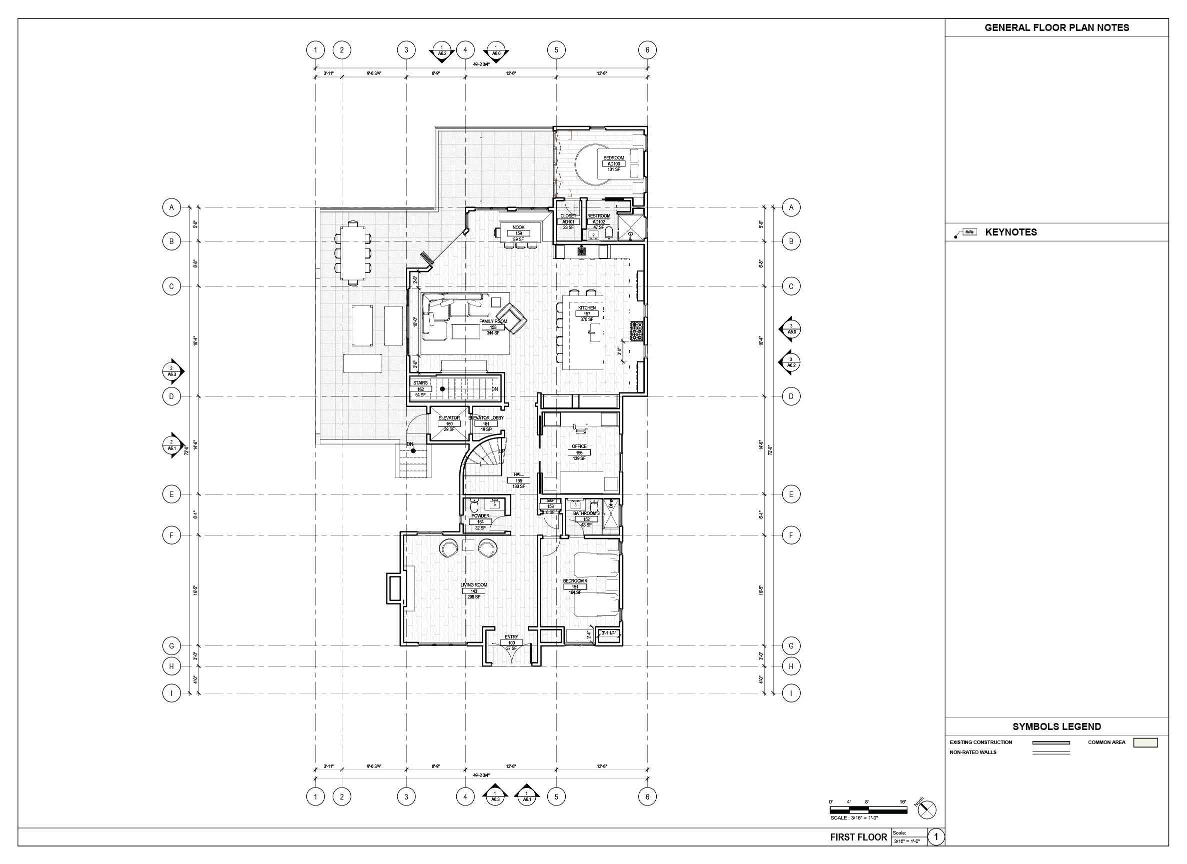
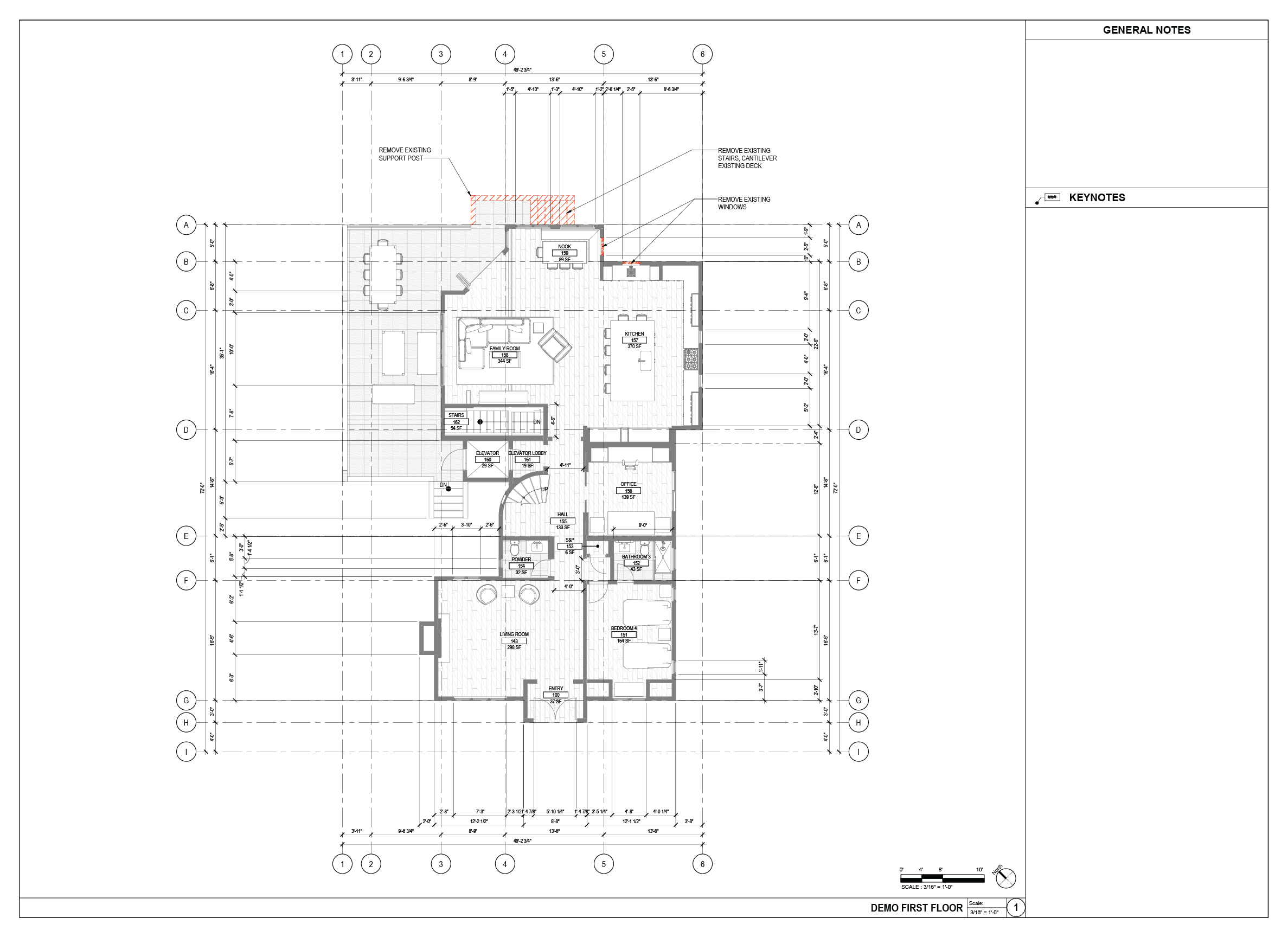
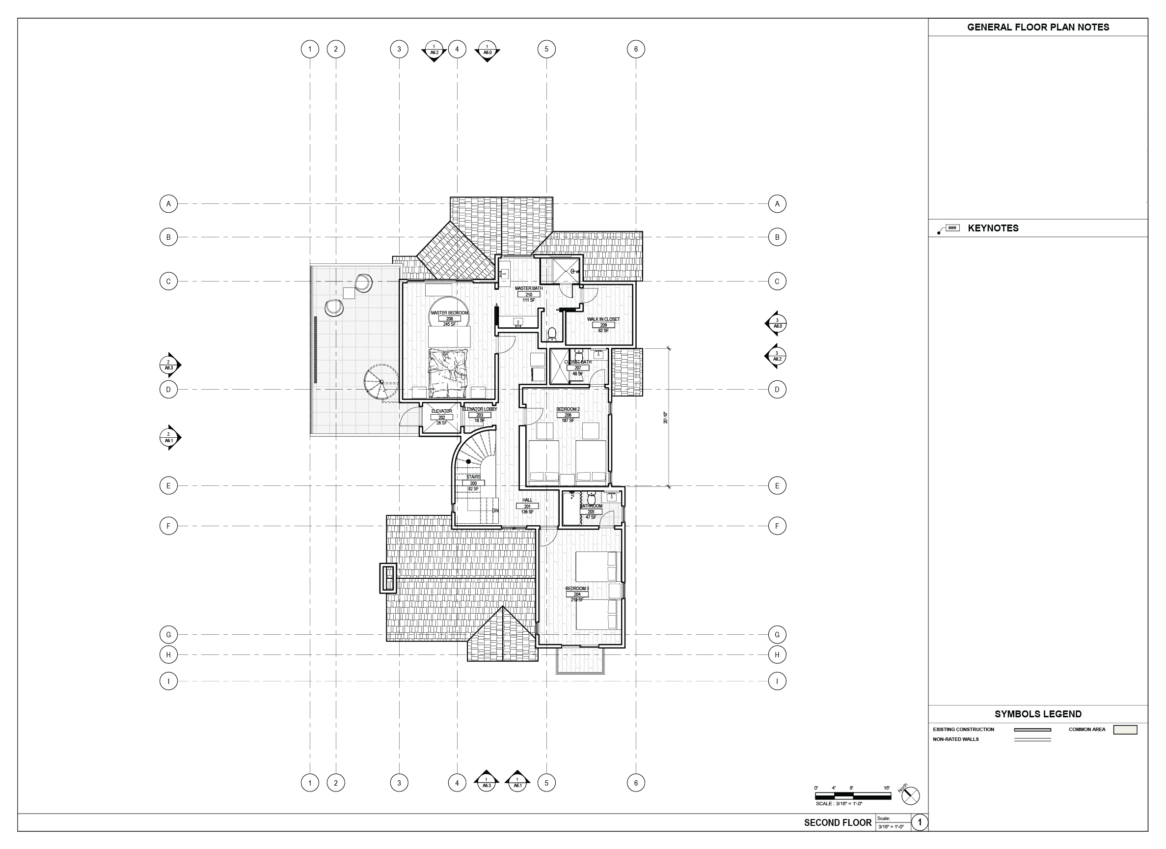
This project involves significant renovations and new construction at a residence in La Jolla, CA. Key elements include building a new retaining wall with waterproofing, installing floodlights for the driveway, and constructing a new driveway. An extended walkway and a new Accessory Dwelling Unit (ADU) will also be added. Existing support posts and stairs will be removed, and existing windows will be replaced. New construction includes a garage with an ADU above it, featuring a La Cantina sliding door.

LOCATION
La Jolla, California

Asset 3
Asset 2
Asset 7
Asset 9
Asset 5
Asset 4
logo-darman-builders

DARMAN Development & Construction
LIC # 987801 : LIC # 1001656

DARMAN Real Estate & Property Management
DRE # 01753422

Copyright © 2025 Darman Companies.
All rights reserved.   Privacy Policy   |   Terms of Use

View